Nave con 1 muelle de carga y una altura de 10,80 metros. Naves industriales. Naves Logísticas. Naves en Alquiler. Viladecans.

Nave industrial/logística en alquiler en Viladecans

Ref. NL25-020

A consultar

Características

P. Baja:1.543 m²
P.1:245 m²
Alt. libre:10 m
Area total:1.788 m²
Muelles de carga:1 muelle
Estructura:Hormigón
Oficinas:Acondicionadas
Medidas PCI:Si

Descripción

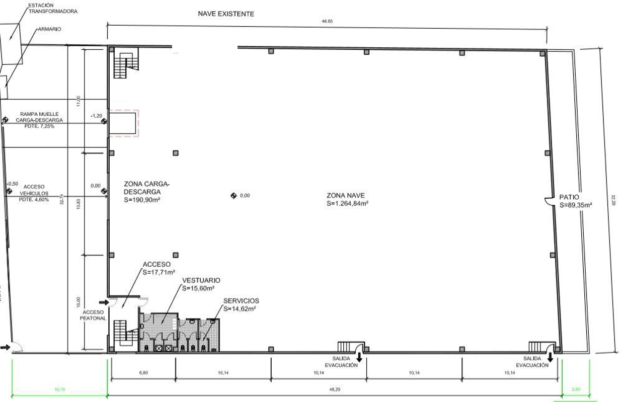
Proyecto Llave en Mano en polígono de reciente urbanización en Viladecans apto para cualquier actividad y con muy buena imagen corporativa.
Nave industrial-logística adosada y esquinera con fachada a avenida principal del polígono, con acceso directo a la autopista C-32.
Dispondrá de puerta tipo TIR más peatonal independiente, muelle de carga, rampa, sistema contra incendios, y oficinas acondicionadas en planta altillo ampliable a 669 m².
Las instalaciones y acabados del inmueble pueden adaptarse a las necesidades específicas de cada usuario.
Estructura y cerramientos de hormigón.
La nave tendrá una altura libre de 10,80 metros.
 

Este Sitio Web utiliza cookies de terceros con la finalidad de realizar tareas de análisis. El acceso y uso del Sitio Web implica su aceptación. Para cambiar tus preferencias o ampliar la información, puede acceder a nuestra Política de Cookies.

más informaciónAcepto